Filtr odkwaszający BR_DAS-166VV (3/4” ODF)
        SKU: BR_DAS-166VV
    
        
        
                                    Brak w magazynie
        
        
    
        
        
                    Producent:
                BLUEREF
    
        
        

Filtr odkwaszający BR_DAS-166SVV z miedzianym przyłączem do lutowania to produkt rekomendowany do instalacji chłodniczych i klimatyzacyjnych, w których miało miejsce spalenia sprężarki. Wkład filtra odkwaszacza składa się w 30% z sit molekularnych oraz 70% z aktywowanego tlenku glinu, dzięki czemu możliwe jest skuteczne odseparowanie wilgoci oraz kwasu powstałego w wyniku spalenia silnika sprężarki oraz ochrona nowej sprężarki przed awarią. Filtr wyposażony jest w 2 zawory Schradera umożliwiające pomiar spadku ciśnienia w filtrze odwadniaczu.
                                    Rozmiar przyłącza:
                                    3/4”, 19 mm
    
            
                                
                                    Wymiary:
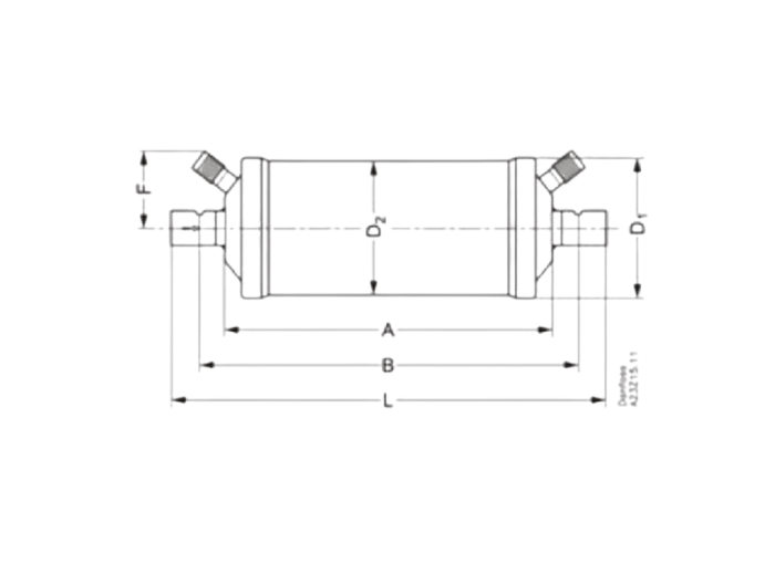
                                    A: 112mm B: 142mm L: lutowany-172mm D2: 76mm F: 50mm
    
            
                                
                                    Orientacja instalacji:
                                    dowolna pod warunkiem, że strzałka wskazuje kierunek przepływu
    
            
                                
                                    Odporność na korozję:
                                    tak, wykończenie farbą proszkową epoksydową
    
            
                                
                                    Filtr:
                                    30% sito molekularne, 70% aktywowany tlenek glinu
    
            
        
        
